JR Chuo / Sobu line Yotsuta station 7 min walk
Tokyo Metro Nanboku line Yotsuta station 7 min walk
Tokyo Metro Marunouchi line Yotsuta station 7 min walk
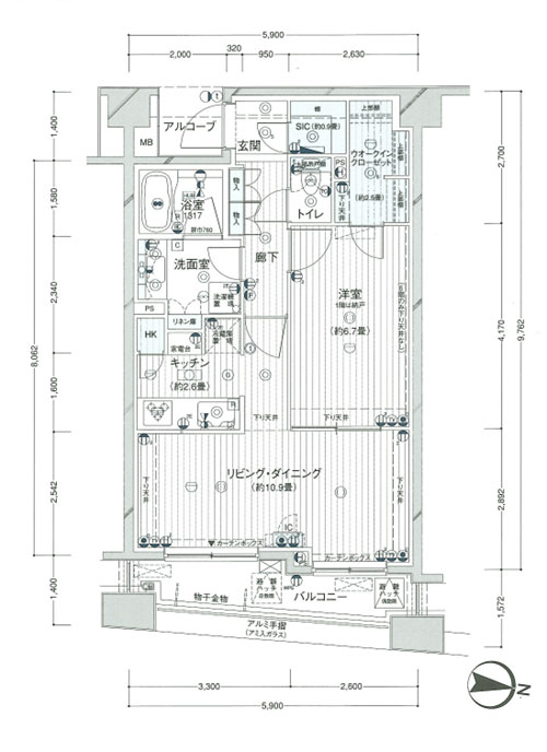
Layout & size:
1 Q-BD, Kitchen, Toilet, Shower, Terrace Total 53.80sqm.
Lease:
Fixed term
Included in rent:
Water, Electricity, Gas and Room Wi-Fi are included in the rent.